PIG

Pies de pilar con alma para anclar

El pie de pilar PI se utiliza para anclar los pilares y protegerios frente a la putrefacción. Debe anclarse al hormigón.

Marcado CE
DITE
Clase de servicio 3
Acero galvanizado en caliente
Exterior
EPD

Detalles de producto

Imagenes

Características

Materia

  • Acero S235JRR según NF EN 10025,
  • Galvanizado en caliente según NF EN ISO 1461,
  • Espesor : 4 mm.

Ventajas

  • Aplicación de carga al levantamiento,
  • Altura regulable gracias a la varilla para anclar,
  • Discreción mejorada.

Aplicaciones

Soporte

  • Elemento principal : hormigón,
  • Elemento secundario : madera maciza, madera compuesta, madera laminada.

Campos de aplicación

  • Pilares de tejadillos, pérgolas,
  • Verandas, terrazas,
  • Ménsulas.

Discontinued Products

Datos técnicos

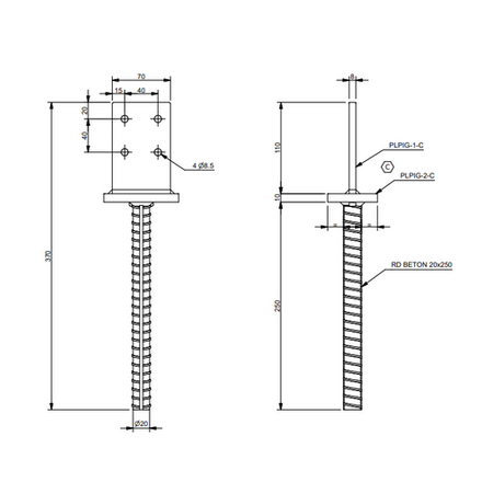
Dimensiones

Dimensiones y Valores Característicos

Modelo DB nr. NOBB nr. Dimensiones y Valores Característicos [mm] Agujeros pletina superior Box Quantity Peso [kg]
A B C F G H t1 t2 Ø8.5
PIG774225721594338906011025020708104101.4

Prestaciones del producto

Modelo Fijaciones Valores Característicos - Madera C24 [kN]
Sobre pilar R1.k R2.k R3.k R4.k
Cdad Tipo Anchura pilar [mm] Anchura pilar [mm] Anchura pilar [mm]
60 80 100 120 60 80 100 120 60 80 100 120 140 160
PIG4STD8xL54.5/kmod13.81618.720.7min (9.4 ; 7.9/kmod)min (10.9 ; 7.9/kmod)min (12.7 ; 7.9/kmod)7.9/kmod3.14.1min (5.9 ; 5.3/kmod)min (7.9 ; 5.4/kmod)min (9.4 ; 5.7/kmod)6.3/kmod

Consulte la gama de anclajes Simpson Strong-Tie para seleccionar los anclajes adecuados. Las soluciones estándares de anclajes dependen del tipo de hormigón, las distancias entre dos anclajes y las distancias a los bordes.

Product characteristic capacities - Simplified values

Modelo Fijaciones Valores característicos simplificados - MAdera C24
Sobre pilar R1,k* R2,k* R3,k* R4,k*
Cdad Tipo Anchura del pilar [mm] Anchura del pilar [mm] Anchura del pilar [mm]
60 80 100 120 60 80 100 120 60 80 100 120 140 160
PIG4STD8xL83.813.81618.720.79.410.912.112.13.14.15.97.98.79.7

* Los valores característicos publicados se basan en una duración de carga a medio plazo y una clase de servicio 3, de acuerdo con el EC5 (EN 1995) (kmod = 0,65). En el caso de diferentes duraciones de carga y clases de servicio, consulte el ETE para obtener capacidades más precisas.

** Consulte la gama de anclajes Simpson Strong-Tie para seleccionar los anclajes adecuados. Las soluciones estándares de anclajes dependen del tipo de hormigón, las distancias entre dos anclajes y las distancias a los bordes.

Instalación

Montaje

Fijaciones

Sobre el pilar de madera :

  • Clavijas STDG o pernos Ø8 mm.

Sobre el hormigón :

  • Anclaje de la varilla para hormigón Ø20 mm  a la losa de hormigón con resina AT-HP.

Instalación

Parte superior :

  1. Realice una entalladura vertical en el alma del pilar (anchura en función del grosor del alma).
  2. Identifique la posición de las clavijas (o pernos) sobre los flancos del pilar.
  3. Perfore transversalmente el pilar para insertar las clavijas. (diámetro de perforación en función del diámetro de la clavija).
  4. Coloque el pie de pilar con alma e inserte las clavijas.

Parte inferior :

  1. Fije el pie de pilar al pilar.
  2. Perfore el soporte verticalmente, con el diámetro y la profundidad recomendados.
  3. Coloque el pilar y finalice la fijación al suelo con la ayuda del anclaje.
  4. El pie de pilar también puede introducirse en el hormigón en el momento en que se vierte dicho hormigón.

Certificación

Idoneidad Técnica Europeo (ETA)

Comprar online

No items available.

Contact

Simpson Strong-Tie Spain SL

Simpson Strong-Tie Spain SL

Calle Carlos Jiménez Díaz, 17
Pol. Ind. La Garena
28806 Alcalá de Henares Madrid
España

Teléfono

Correo electrónico